Bienvenue à Jiahua Aluminium Co., Ltd.
 Tel: 86-0757-81802162                  E-mail: fanny@jh-aluminium.com

loading

JHMQ150 / 160/180/200

Quantité:
  • JHMQ150 / 160/180/200

  • JIA HUA ALUMINIUM CURTAIN WALL

Description du produit

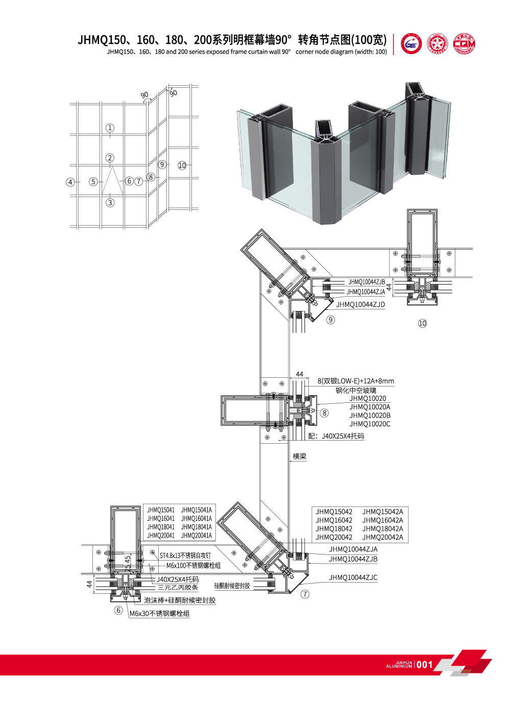
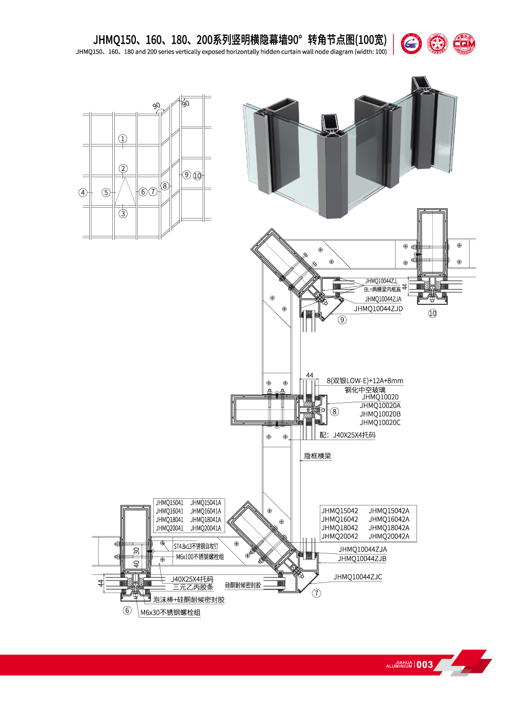
Profils en aluminiumMur-rideau en aluminium003Mur-rideau visibleMur-rideauconception de mur-rideaules profils de murs-rideauxaluminium profils de murs-rideauxMur-rideau visibleMur-rideau en aluminiumAluminium profils de murs-rideaux

sur: 
En vertu d'un: 

CONATCT US

Jiahua Aluminium Co., Ltd.
86-0758-3202393
86-0758-3202393
fanny@jh-aluminium.com
Route n ° 6 de Guangzhao, zone industrielle de Nanjiang, ville de Dasha, Sihui, ville de Zhaoqing, province du Guangdong, Chine
Zone industrielle de Lutang, Luocun, ville de Shishan, district de Nanhai, ville de Foshan, Guangdong
Province, Chine.

LIENS RAPIDES

SUIVEZ NOUS

PARTAGER À
 Copyright & copie; Guangdong Jia Hua Aluminium Co., LTD.